há 3 horas
Lucas Ribeiro

O Grupo Muffato apresentou ao Instituto de Pesquisa e Planejamento Urbano de Ponta Grossa (Iplan) um Estudo de Impacto de Vizinhança (EIV) que detalha a implantação de um novo supermercado Max Atacadista de grande porte no bairro Cará-Cará, em Ponta Grossa. O estudo visa avaliar os impactos positivos e negativos da instalação do empreendimento na região.
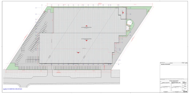
A estrutura, conforme detalha o estudo, será construída entre a Rua Germano Justus e a Avenida Siqueira Campo, em um terreno de 16.456,24 metros quadrados. A área total do empreendimento será de 10.353,34 metros quadrados, com destaque para a área de vendas de aproximadamente 4.800 metros quadrados.
Conforme consta no documento, o projeto contará com açougue, padaria e confeitaria, além de setores de laticínios, resfriados, congelados, farináceos, mercearia seca e bebidas. A estrutura também prevê área de venda de frutas, verduras e legumes (FLV), depósito, doca de carga e descarga e 30 praças de caixa, sendo 24 de atendimento tradicional e seis de autoatendimento. Também haverá 236 vagas de estacionamento destinadas a carros, motocicletas e bicicletas.
Para a construção da obra, previsão é de um total de 150 operários envolvidos, principalmente na fase final do projeto, onde ocorrem as fases de pintura, serralheria, montagem, alvenaria, assentamento de pisos e pedras. Após a inauguração, estimasse que um total de 225 funcionários serão contratados inicialmente para o trabalho em três turnos.
O EIV identifica impactos positivos relacionados à geração de empregos diretos e indiretos, fortalecimento do comércio local, diversificação da oferta de serviços e potencial valorização imobiliária da região sul da cidade. Por outro lado, o estudo também aponta impactos negativos, principalmente relacionados ao aumento do fluxo de veículos e pedestres, demanda por vagas de estacionamento e possíveis alterações na dinâmica urbana do entorno.
Para mitigar esses impactos, o EIV propõe medidas como adequações na sinalização viária, melhorias nos acessos ao empreendimento, incentivo à mobilidade sustentável, agendamento de horários para carga e descarga e monitoramento contínuo dos efeitos sobre o sistema viário. Também estão previstas ações voltadas à acessibilidade, como implantação de calçadas adequadas, faixas de pedestres e integração com o transporte público.